Продается дом, 245 кв.м., /2 эт
| Стоимость | 21 990 000 |
|---|---|
| Ремонт | Евро |
| Кадастровый номер участка | 50:04:0271106:675 |
| Право собственности | Собственник |
| Материал стен (Авито дома) | Газоблоки |
| Газоснабжение | Есть |
| Комнат в доме | 5 |
| Способ продажи дополнительно | Можно в ипотеку |
| Тип парковки | Парковочное место |
| Категория земли Avito | Индивидуальное жилищное строительство (ИЖС) |
| Сообщения от Авито | да |
| Водоснабжение (cian) | Скважина |
| Способ связи avito | По телефону и в сообщениях |
| Канализация (cian) | Септик |
| Тип отопления cian | Автономное газовое |
| Вид объекта | Дом |
| Площадь участка, сот. | 7 |
| Населенный пункт | деревня Варварино |
|---|
Предлагаем приобрести Земельный участок с расположенным на нем Жилым домом, адрес (местонахождение): РФ, Московская область, Дмитровский р-н, г/п Яхрома, д. Варварино.
КОММУНИКАЦИИ: свет - 15 кВт 3 фазы; вода – колодец 13 колец, с оборудованием. Зеркало воды на 10-м кольце.Заведена в дом, установлены фильтры глубокой очистки ультрафиолетом, фильтры на железо, бак с солью на смягчение воды, накопительный бак на 150 л. Вода в доме питьевая; канализация – два переливных колодца 5 колец; газ централизованный. Все коммуникации подключены.
ОПИСАНИЕ ЗЕМЕЛЬНОГО УЧАСТКА: кадастровый № 50:04:0271106:675, площадь 586 кв.м.( есть возможность увеличить до 12 соток), категория земель: ЗСН, вид разрешенного использования: для ИЖС. Периметр участка 15м. - 41м. - 18м. - 40м..Участок сухой, прямоугольной формы, с уклоном, с видом на поле в направлении Дмитровского шоссе. Участок покрыт газонной травой. Территория огорожена капитальным забором из профлиста на сваях, ворота откатные, механические шириной 5 м., дорожки из тротуарной плитки, по периметру дренаж.
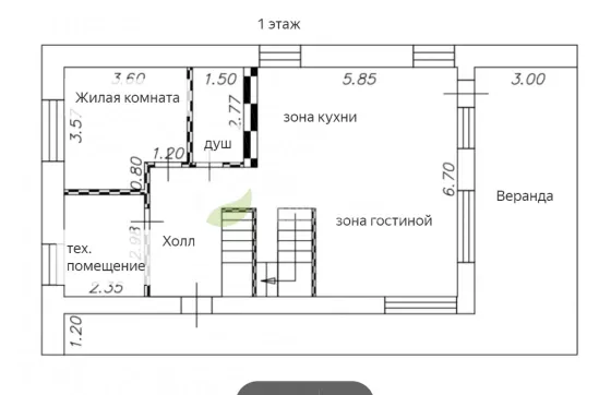
ОПИСАНИЕ ЖИЛОГО ДОМА: кадастровый № 50:04:0271106:679, площадь 245 кв.м. Дом 2-х этажный, выполнена чистовая отделка качественными современными материалами, 2023 г. п., фундамент – монолитная лента с ростверком плюс бетонная плита перекрытия 300mm, межэтажное перекрытие – металлическая двутавровые балки между которыми брус 300mm, стены: внешние – блок 400mm + 80mm чистовая внутренняя и фасадная отделка, внутренние перегородки – блок 200mm. Фасад отделан декоративной доской и декоративной облицовкой под камень плитняк. Окна ПВХ, панорамные и стандартные с функциями проветривания; крыша мягкая кровля + утеплитель. Скрытые системы отливов. Крышу можно эксплуатировать как летнюю зону отдыха. Террасы первого и второго этажа выходят на солнечную сторону, что позволяет принимать солнечные ванны, не выходя из дома. Умная система освещения выполнена с учетом функциональности и практичности использования. Внутренняя отделка: полы керамогранит, ламинат высокого качества стены ГКЛ, покраска, натяжные потолки, раздельные зоны освещения, укомплектованные оборудованием санузлы, меблировка под заказчика по доп. условиям: 1 этаж - прихожая с нишей под гардеробный шкаф 8 кв.м., бойлерная 7 кв.м., жилая комната 11.8 кв.м.; душевая 4 кв.м.; зона кухни - гостиной 36 кв.м. с выходом на веранду. 2 этаж – 3 жилых комнаты 20 кв.м., 17 кв.м., 12 кв.м. с выделенной зоной хранения и выходом на террасу; ванная комната 10.8 кв.; коридор 5.2 кв.
ИНФРАСТРУКТУРА: д. Варварино расположена в 32 км. от Москвы по Дмитровскому шоссе. В деревне многие живут круглый год. Дороги обслуживаются муниципалитетом. Поблизости находятся горнолыжные курорты «Парк Тягачева», «Парк Яхрома» и «Волен», которые активно работают и в летний период (пляжная зона, пейнтбол, тобоган, прокат, рестораны, Spa-центр). По соседству расположен картинг клуб. Прекрасный дом. Красивое место, чистый воздух, рядом лес, грибы-ягоды. Отличное место для круглогодичного проживания! До МКАД 32 км по Дмитровскому шоссе. До г. Дмитров 18 км, до г. Яхрома 4 км. Оперативный показ в удобное время! Подходит под ипотеку! Помогаем с оформлением (наше Агентство является партнером более, чем 20 Банков). Обращайтесь! Прямая продажа!
Наше Агентство является членом Ассоциации «Гильдия риэлторов Московской области» и НП «Российская Гильдия Риэлторов», что гарантирует чистоту сделки, соблюдение Кодекса этики и стандартов практики работы на рынке недвижимости РФ.





















































































